Le jardin familial

Sélection de projets : Jardins de particuliers

Rénovation paysagère complète – Villeneuve-d’Ascq (Lille)

Le projet porte sur la transformation complète d’un jardin familial laissé à l’abandon après succession. L’espace, aujourd’hui déstructuré, comporte une terrasse carrelée usée, des cheminements en dalles gravillonnées dispersées, un cabanon encombré et quelques fruitiers en fond de parcelle.

L’objectif était de redonner cohérence et lisibilité au jardin, de valoriser les éléments existants et de repenser l’organisation générale pour réintroduire fonctionnalité et usage quotidien.

Notre proposition d'aménagement : 

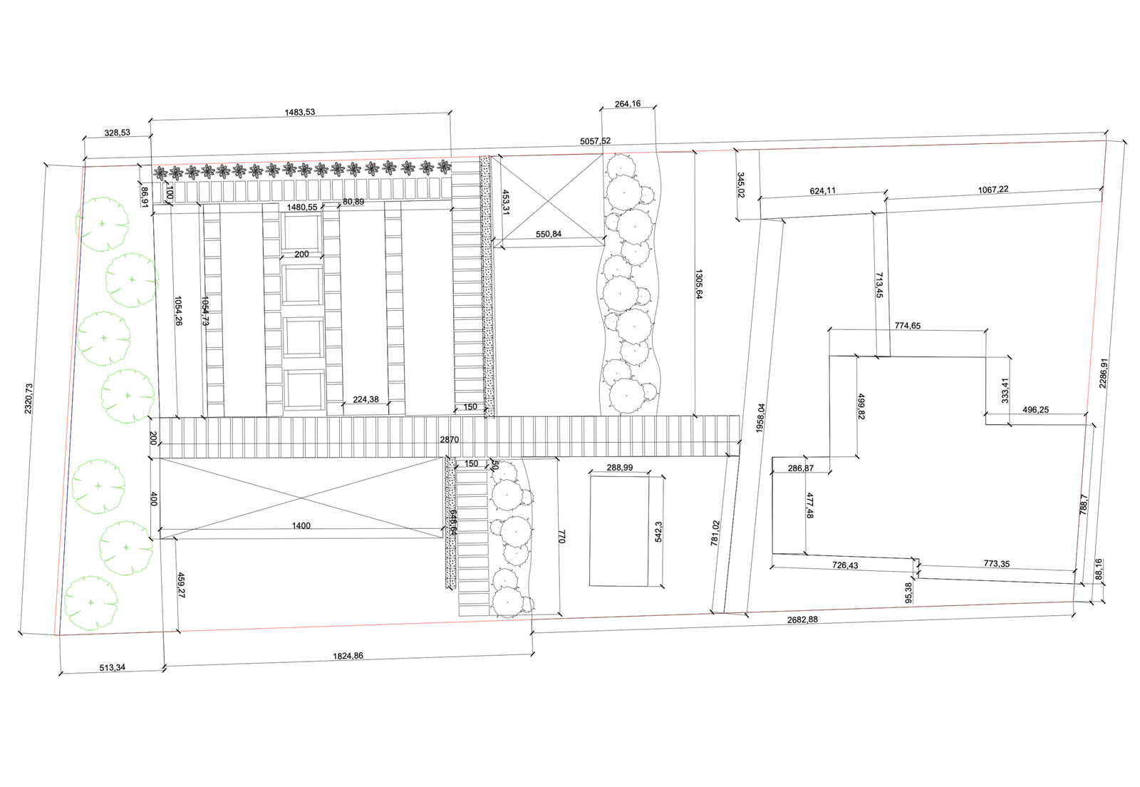
  • Terrasse bois sur mesure : Remplacement de l’ancien carrelage dégradé par une plateforme conviviale reliant l’allée de garage au jardin, avec une forme irrégulière structurant l’espace et fluidifiant les déplacements.

  • Revalorisation des dalles existantes : Anciennes dalles alvéolées, redécoupées et réutilisées pour cheminements secondaires du potager.

  • Parcours unifié : en dalles béton revalorisées reliant toutes les zones du jardin, assurant cohérence matérielle et lecture claire de l’espace.

  • Potager sur plusieurs niveaux : hors-sol butté en BRF, en bac bois et pleine terre, offrant différentes pratiques culturales complémentaires et saisonnières.

  • Gestion de l’eau et zones techniques : Cuve de récupération d’eau de pluie raccordée au cabanon et zone de compostage pour valoriser les déchets.

  • Structuration végétale : Massifs arbustifs persistants et caducs à bois décoratif, haies et bordures bois, avec plantations fruitières supplémentaires.

  • Limite paysagère : Ganivelle en fond de parcelle pour sécuriser le talus vers la rivière « La Marque », avec portillon d’accès ponctuel.

Plans masses : Main levée - AutoCad - Sketch'Up

Perspectives du projet :

Modélisation 3D Sketch'Up

Rendu 3D/ Photo-réaliste

Conclusion :

Le jardin est fonctionnel, structuré et évolutif, favorisant autoproduction et autonomie alimentaire. Les cheminements hiérarchisés relient potagers, fruitiers et zones de détente, créant un espace cohérent, esthétique et pérenne, adapté aux usages familiaux.

Perspectives complémentaires :